500 mq
STORICO. INDIPENDENTE. ESCLUSIVO.
Nei pressi del caratteristico Borgo di Ponzano di Fermo, a soli 15 km dal litorale marchigiano, proponiamo in Vendita palazzetto cielo terra indipendente di complessivi mq 490 con annesso GIARDINO PRIVATO.
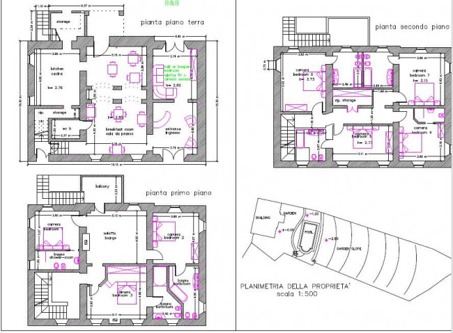
L'edificio, costruito in muratura, ha beneficiato della sostituzione del tetto ed è stato completamente ripulito nelle sue facciate esterne. La proprietà si sviluppa su tre piani e presenta le tipiche caratteristiche storiche e funzionali di un palazzetto di nobili origini: arcate in mattoni, intonaci decorati e pavimentazioni originali in marmittoni. Si lascia libera la ristrutturazione interna che, riportandolo all'antico splendore con le sue caratteristiche originali, trasformerebbe l'immobile in una splendida residenza privata de charme, una esclusiva attività ricettiva, o più soluzioni abitative indipendenti.
(Sono allegati di seguito eventuali indicazioni di progetti)
Possibilità di realizzare una piscina in giardino, portico/tettoie.
OPPORTUNITA'!!

500 mq