Vedi più foto
Rif. 115128
€ 600.000
Classe energetica: G

Casa singola in Vendita a Porto San Giorgio

318 mq
5
4
Descrizione

VILLINO PANORAMICO IN ZONA COLLINARE. VISTA MARE.
In posizione esclusiva e riservata, con splendida vista sul mare e sulla prima collina di Porto San Giorgio, proponiamo in Vendita caratteristico VILLINO bifamiliare sviluppato su 2 livelli, composto da due esclusive abitazioni indipendenti, entrambe con terrazze panoramiche vista mare e balconi esposti sull'entroterra fermano, così composte:
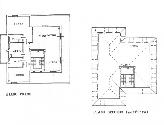
-al Piano TERRA, accogliente appartamento di 120 mq. con portico, suddiviso in accogliente soggiorno con camino in muratura, pavimentazione in cotto, soffitto retroilluminato, cucina abitabile in muratura, sala da pranzo con balcone attrezzato, disimpegno e zona notte pavimentati in parquet e serviti da luminosa camera da letto e servizio finestrato.
-al piano PRIMO e SECONDO, generoso appartamento di 198 mq complessivi, suddiviso in due distinti livelli e precisamente:

  • Abitazione al piano primo, caratterizzata da comoda zona living con camino in muratura, sala da pranzo con angolo cottura e accesso su ampio terrazzo panoramico sul mare, n. tre camere da letto, di cui una con accesso su balcone e DOPPI SERVIZI finestrati.
  • Mansarda attrezzata al piano secondo, con accesso da scala interna, da impiegare come studio, laboratorio, area relax e tempo libero, per eventuali ospiti o per ampliare la zona living per le esigenze più svariate.
Esposto su quattro lati, il villino, climatizzato e ben tenuto, presenta ambienti soleggiati ed arieggiati e si presta ad essere personalizzato per vivere appieno ogni sua zona, ottimizzando il comfort e l'eleganza che contraddistingue gli interni.
Un indubbio valore aggiunto della proprietà è rappresentato dal "polmone verde" in cui è inserita l'abitazione: un'ampia corte pianeggiante, in parte pavimentata ed in parte adibita a giardino, oltre ad uno splendido parco attiguo con terreno di mq. 11.800, in parte seminativo ed in parte piantumato: un contesto naturalistico che conferisce ulteriore prestigio agli immobili sopra descritti.
Per la zona esclusiva, l'ampia area verde con il pittoresco affaccio sul mare e sui dolci pendii dell'entroterra fermano, il VILLINO rappresenta un investimento di sicuro interesse per gli amanti della natura e per chi necessita di ampi spazi da condividere, sia come residenza principale, sia come proprietà da destinare ad usi diversi, personalizzandone le molteplici potenzialità.
Possibilità di Vendita frazionata. Ulteriori informazioni in ufficio.
OTTIMA OPPORTUNITA'!

mostra di piùmostra di meno
Caratteristiche
Scopri le caratteristiche di questo immobile
Totale mq: 318 mq
Camere: 5
Bagni: 4
Locali: 12
Stato conservazione: Ottimo
Piano: Su due livelli
Piani totali: 2
Riscaldamento: Autonomo
Posto auto: Scoperto
Infissi: doppi vetri/legno
Termosifoni: alluminio
Appartamenti Totali: 2
Anno di costruzione: 1993
Stato attuale: Libero al rogito
Esposizione: quattro lati
Balconi: Presente
Soffitta: Presente
Terrazzo: Presente
Giardino: Privato
Cucina: Abitabile
Box: Doppio
Posizione: Zona residenziale
Ubicazione immobile
Contattaci


Alcuni immobili che potrebbero interessarti

  • Casa singola in vendita a Porto San Giorgio
    Porto San Giorgio
    € 299.000
    Casa singola in vendita
    Rif. 114196
    CASA SINGOLA CON GIARDINO Nella ricercata zona di Piazza Torino, in posizione ideale per raggiungere tutti i servizi e il mare, vendiamo...
    Dettagli
  • Casa singola in vendita a Porto San Giorgio
    Porto San Giorgio
    € 225.000
    Casa singola in vendita
    Rif. 114725
    CASA INDIPENDENTE IN VENDITA. DA RISTRUTTURAREA poca distanza dal mare, in località Salvano di Porto San Giorgio, proponiamo in vendita...
    Dettagli
Ultimo aggiornamento 22/12/2025
Casa singola in Vendita
Porto San Giorgio
€ 600.000
318 mq
5
4
Menu
Ricerca
Chiamaci
Scrivici
Whatsapp