100 mq
1
IL Locale commerciale CHE NON TI ASPETTI.
Il Locale commerciale in Vendita nel centro cittadino di Porto S. Elpidio si propone di offrire una nuova esperienza di Vendita di prodotti e servizi. Il suo stile raffinato e fuori dagli schemi conquisterà i potenziali clienti per l'originalità del connubio tra linee e proporzioni, tra luce e colore.Situato al Piano Terra del RESIDENCE PortoVivo, di prossima realizzazione, in zona ad alto traffico pedonale e veicolare, con ampia visibilità e facilità di parcheggio, il locale, innovativo e sostenibile, coniuga modernità e bellezza senza tempo, ampi spazi e luminosità, a due passi dal centro e dal MARE.
Grazie alle scelte operate sui materiali dell'immobile in ristrutturazione e ad una sapiente rivisitazione a cura di tecnici specializzati, il LOCALE gode della capienza degli ambienti interni e della luminosità delle vetrine, in perfetta armonia con la presenza di verde, di pietra naturale e di legno a tutti i livelli dell'edificio, dettagli che rendono il Piano Terra particolarmente accogliente.
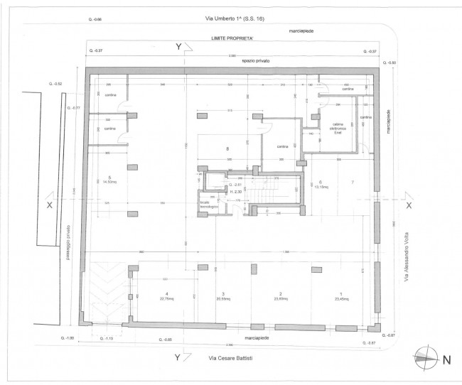
La superficie totale di 411 mq del LOCALE, attualmente concepito come openspace, dotato di 14 vetrine e di 4 bagni a norma, è frazionabile a seconda delle diverse esigenze professionali e consente l'esercizio delle più svariate attività, grazie alla possibilità di suddividere la disposizione degli ambienti e e alla presenza di ulteriore RIPOSTIGLIO/SOFFITTA da destinare a magazzino/deposito, ai piani seminterrato e sottotetto.
La classe energetica A del locale, dotato di pompe di calore elettrica reversibile caldo/freddo e controsoffitto con bocchette d'aria e accumulo per la produzione di acqua calda sanitaria, rappresenta un imprescindibile standard di sostenibilità ambientale nel contesto della ridente cittadina elpidiense.
Il LOCALE risulta un'ottima opportunità di acquisto per chi desidera ampliare la propria attività o semplicemente investire in un'area in forte sviluppo, grazie alla sua posizione strategica, alle ampie metrature e alle diverse potenzialità di personalizzazione degli interni.
Su richiesta, disponibilità di posti auto coperti (115249) o scoperti (115250) a 60 metri circa dal locale.
Finalmente un Locale commerciale che si distingue dagli altri per eleganza e stile!
OFFERTA-LANCIO 2026: Euro 2.300,00/Mq + IVA.
Superficie totale del Locale commerciale Mq. 411 - (Totale Euro 945.000,00 + IVA frazionabili)
Posti auto coperti o scoperti da computare con prezzo a parte
ESEMPIO DI FRAZIONAMENTO (Piano T)
Porzione di Locale commerciale mq. 100 personalizzabile
Spazio logistica a disposizione al Piano S1
Espozione Sud/Est
Posti auto da computare con prezzo a parte
Euro 230,00 + IVA
NESSUNA PROVVIGIONE PER L'ACQUIRENTE!!
Esclusiva di Vendita:
Polos Immobiliare
Viale dei Pini, n. 108
Porto San Giorgio (FM)
Tel 0734/672343
Per ulteriori informazioni rivolgersi in ufficio.

100 mq
1