158 mq
3
2
CENTRALE. PANORAMICO. PARI AL NUOVO
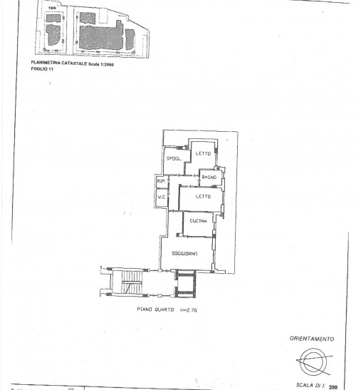
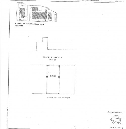
In posizione privilegiata e centrale, prossima a tutti i servizi, proponiamo luminoso Appartamento di generose dimensioni (mq. 105) sito al piano quarto di recente palazzina inserita in contesto residenziale e corredata da terrazza perimetrale VISTA MARE e di GARAGE doppio. L'Appartamento, pari al nuovo, è esposto a sud-est e si compone di ingresso/disimpegno, ampio soggiorno, cucina abitabile, tre camere, di cui una matrimoniale, una doppia e una singola, DOPPI SERVIZI e ripostiglio, oltre al pratico balcone panoramico di mq. 38. Il garage al piano seminterrato, di ben 40 mq., rappresenta un ulteriore valore aggiunto per questa soluzione di rara reperibilità sul mercato, esclusiva per la posizione strategica, per la cura negli arredi e nei materiali impiegati, tra cui l'ottimo parquet, presente nei diversi locali dell'immobile. DA VEDERE!!

158 mq
3
2