105 mq
3
2
PANORAMICO. LUMINOSO. AMPIO.
Nel verdeggiante scenario di Santa Petronilla, in zona residenziale, prossimo a tutti servizi, proponiamo per l'acquisto ampio Appartamento di mq. 105 con doppio ingresso in palazzina di soli 4 condomini. L'immobile, posto al primo e ultimo piano (PT rialzato da via Giammarco), gode di vista panoramica sull'entroterra fermano ed è dotato di comodo GARAGE di mq. 30 al piano strada.
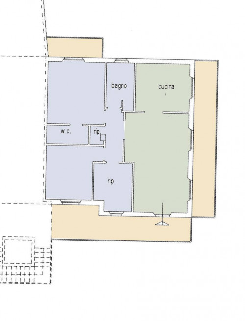
La disposizione interna comprende: zona giorno con ingresso, ampio salone e cucina abitabile; zona notte con camera matrimoniale (dotata di bagno interno con doccia) , camera doppia e camera singola, oltre a ulteriore bagno con vasca, ripostiglio e n. 2 balconi abitabili (mq. 25) esposti a sud-ovest.
Pavimentazione in monocottura, allarme, doppi vetri con zanzariere e persiane in PVC.
Posizione invidiabile, ottime finiture, ridotte spese condominiali, tipologia di rara reperibilità sul mercato.
DA VISITARE!!!

105 mq
3
2