122 mq
3
2
AMPIO. PANORAMICO. PARI AL NUOVO.
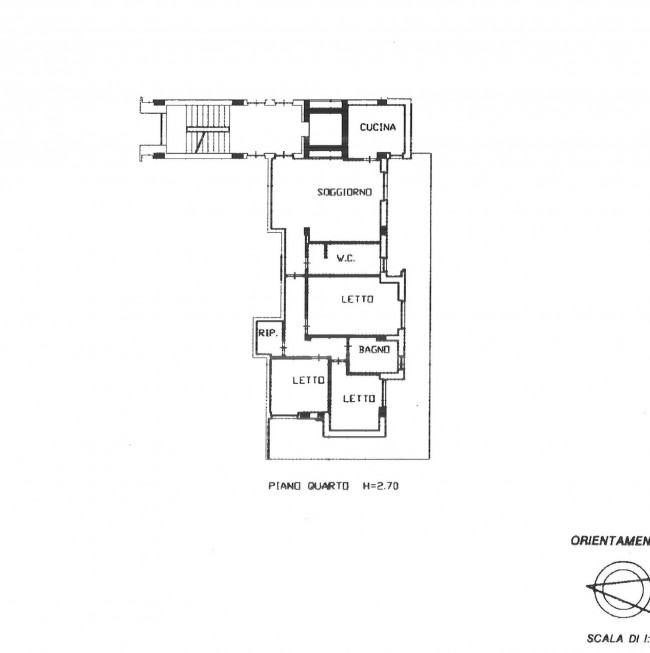
In posizione ideale ed in contesto residenziale, prossimo al centro e alla spiaggia, vendiamo Appartamento di mq 122 posto al piano 4 con ASCENSORE corredato di GARAGE di mq. 46 posto al piano S1.
L'immobile, pari al nuovo, gode di ottima esposizione su due lati e di una splendida VISTA SUL MARE, disponendo dei seguenti locali:
Ingresso, cucina abitabile, soggiorno con camino, n. 3 camere da letto, DOPPI SERVIZI, ripostiglio, disimpegno e balconi perimetrali abitabili.
Completa la proprietà un garage doppio raggiungibile comodamente tramite ascensore.
OCCASIONE UNICA!

122 mq
3
2