208 mq
3
2
PANORAMICO . COMODO . LUMINOSO.
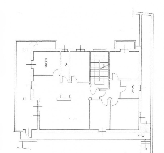
Nei pressi di Piazza Torino, in zona servita e panoramica, vendiamo Appartamento di ampia metratura, situato al primo piano di una palazzina bifamiliare.
La soluzione, libera su quattro lati, gode di una splendida VISTA MARE e di un esclusivo TERRAZZO di mq.40. L'abitazione è composta da ampio living con CAMINO, comoda cucina abitabile, tre spaziose camere e DOPPI SERVIZI finestrati.
Per metratura, esposizione e posizione, l'immobile rappresenta un'ottima opportunità sia come abitazione principale che come investimento.
DA VEDERE!!

208 mq
3
2