128 mq
1
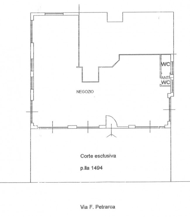
Locale commerciale - LUMINOSO - OTTIMA VISIBILITA'
In contesto di forte visibilità e di intenso passaggio, vendiamo luminosissimo Locale commerciale composto da un unico grande ambiente, che si estende su una superficie totale di 128 metri quadrati, di cui 118 calpestabili. L'immobile è caratterizzato da sei ampie vetrine che permettono un'ottima esposizione e una grande luminosità all'interno del locale; si distingue per l'ampiezza degli spazi e per la versatilità d'impiego, oltre alla presenza di una corte privata esclusiva di mq. 80 antistante la proprietà.
La sua posizione rende il locale facilmente raggiungibile dalla clientela e rappresenta una vera opportunità per chi desidera avviare o ampliare la propria attività commerciale in una delle zone più dinamiche e frequentate di Porto San Giorgio.
Non esitate a contattarci per ulteriori informazioni e per organizzare una visita al locale.

128 mq
1