130 mq
3
2
PARI AL NUOVO. PRONTO. SERVITO.
In zona servita, nelle immediate vicinanze della prestigiosa Villa Vitali a Fermo, vendiamo Appartamento di nuova costruzione di mq.130 pronto da abitare. L'abitazione è posta al piano primo, con TRIPLA ESPOSIZIONE e balconi su 3 lati.
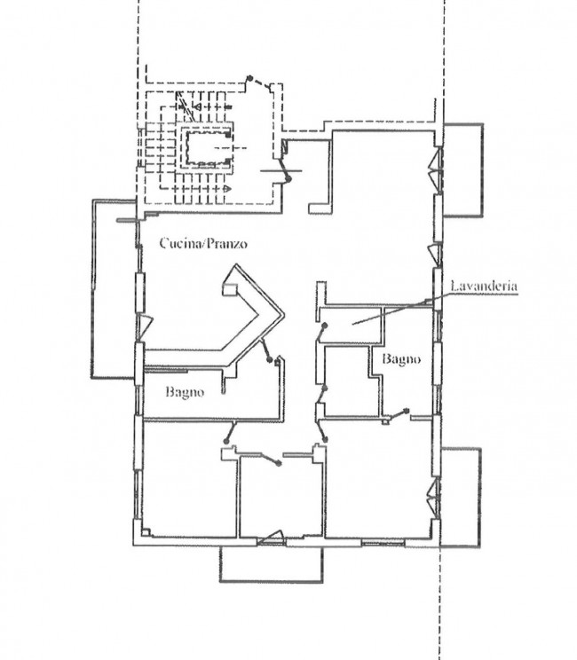
La proprietà si compone di disimpegno con pratico armadio a muro, ampio living con spaziosa zona per cucina a vista e sala pranzo con proprio accesso a balcone da un lato e comodo soggiorno con affaccio sulla piazza alberata, dall'altro lato. Percorrendo il corridoio, si accede alla zona notte dove si trovano una spaziosissima camera matrimoniale con balcone oltre alle altre due comode camere e ai DOPPI SERVIZI, entrambi finestrati, un pratico ambiente lavanderia ed una cabina armadio attrezzata.
Inserito in una palazzina recentemente ricostruita con norme antisismiche, l'abitazione è dotata di riscaldamento a pavimento con slendido parquet, e si cede con cucina nuova completa di elettrodomestici.
Gli infissi di ultima generazione con zanzariere annesse, la caldaia a condensazione e il cappotto termico attribuiscono all'immobile la classe energetica A+. I materiali di prima qualità e le finiture di pregio conferiscono la massima vivibilità ed il miglior comfort abitativo all'immbibile.
La soluzione vanta inoltre un BOX AUTO di proprietà posto al piano strada e raggiungibile dall'abitazione direttamente da ASCENSORE interno allo stabile.
Per qualità, metratura e posizione, la proprietà si rivela un'ottima e rara opportunità di acquisto.
DA VEDERE!

130 mq
3
2