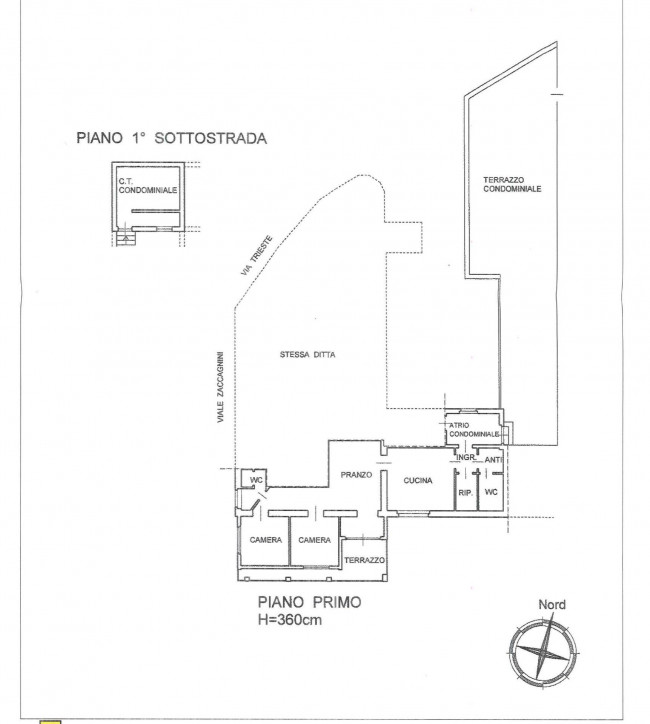
112 mq
2
2
AMPIO. COMODO. SERVITO.
In Vendita a Montegranaro, in posizione servitissima, a pochi passi dal centro e dalla piazza San Serafino, proponiamo luminoso Appartamento di ampie dimensioni, situato al primo piano in palazzina di poche unità abitative.
La superficie totale è di 112 mq, suddivisi in 5 locali spaziosi e ben distribuiti, suddivisi tra zona giorno, con ingresso, cucina abitabile, ampio soggiorno con camino ed accesso al balcone, pratico ripostiglio e disimpegno, e zona notte, con due comode camere matrimoniali con parquet e doppi servizi finestrati
L'abitazione si presenta ben tenuta ed accogliente grazie ad una ristrutturazione parziale degli interni, che risutano armoniosi e funzionali; gode inoltre di una gradevole esposizione, che garantisce una buona luminosità durante tutto il giorno.
Il balcone dell'Appartamento permette di godere della vista sulle vie del centro e di trascorrere piacevoli momenti all'aria aperta. Un ulteriore terrazzo condominiale a disposizione costituisce un valore aggiunto dell'immobile per la possibilità di beneficiare di altre superfici da vivere in "open air".
La posizione dell'immobile e le sue peculiarità lo rendono appetibile per l'ottimo rapporto qualità/prezzo.
Ideale per una famiglia o per chi ama gli ampi spazi, l'Appartamento è pronto da abitare
DISPONIBILITA' IMMEDIATA!!

112 mq
2
2