200 mq
3
4
VILLINO PANORAMICO VISTA MARE con GIARDINO e GARAGE.
In contesto residenziale, in zona tranquilla e comoda ai servizi, proponiamo in Vendita elegante VILLINO PANORAMICO a schiera di recente costruzione, caratterizzato da ampi e luminosi spazi interni oltre a Giardino e Garage privati.
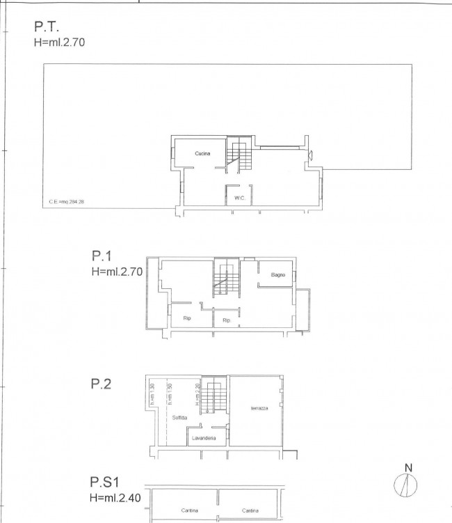
Il villino di testa, sviluppato su mq. 200, dispone di 4 livelli ben distribuiti tra piano terra, primo e secondo oltre al piano seminterrato, come segue:
PT Ampio e confortevole soggiorno con splendide vetrate sul giardino, sala da pranzo e cucina comunicanti con la corte esterna pavimentata, porticato di mq. 40 servito da forno e barbecue; bagno di servizio;
P1 zona notte composta da n. due camere matrimoniali, con lati est e ovest servite da balconi panoramici; doppi servizi e pratico ripostiglio,
P2 mansarda con locale polivalente, ulteriore bagno, terrazzo / solarium con suggestiva VISTA sul MARE.
Al piano sottostrada il villino dispone inoltre di un comodo Garage (mq. 19) con accesso indipendente dalla strada.
Il gradevole giardino, della superficie di mq. 300, è variamente piantumato e dotato sia di pozzo d'acqua sorgiva sia di utile cisterna (capienza 300 Ql), entrambi collegati con l'impianto d'irrigazione.
Nella costruzione dell'abitazione, che vanta un impianto di riscaldamento a pavimento, sono stati utilizzati materiali di prima scelta, tra cui il pregiato parquet, il gres porcellanato e gli infissi di ottima qualità, rispondenti alle più recenti normative termoacustiche.
La proprietà, in ottimo stato di manutenzione, rappresenta una soluzione ideale sia come residenza principale, funzionale e completa di tutti i comfort, sia come casa al mare esclusiva, in una delle destinazioni turistiche più apprezzate del litorale fermano, alle porte di Porto San Giorgio e a poca distanza dal capoluogo.
DISPONIBILITA' IMMEDIATA!!

200 mq
3
4