78 mq
2
1
INDIPENDENTE con GIARDINO e GARAGE
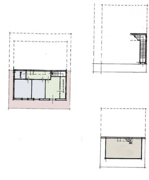
In prossimità di Piazza Torino, in piccola palazzina, proponiamo l'acquisto di un'abitazione di mq. 78 posta al piano primo, con ingresso autonomo, giardino di pertinenza, ampi terrazzi e mansarda abitabile.
L'abitazione, libera su tre lati, è composta da un luminoso soggiorno/sala da pranzo con camino, un pratico cucinotto oltre ad un soleggiato terrazzo perimetrale di mq. 37, da n. 2 camere e dal bagno.
Dal disimpegno, tramite una comoda scala di legno, si raggiunge l'accogliente MANSARDA con camino, da personalizzare a seconda delle esigenze.
Completano la proprietà l'esclusivo GIARDINO di mq. 30 e il GARAGE di mq. 24, pertinenze che, insieme agli infissi in doppio vetro e all'assenza di spese condominiali, conferiscono valore aggiunto all'immobile.
Pronta consegna!!!

78 mq
2
1