160 mq
4
1
CASA PANORAMICA CON ACCESSORI.
A poca distanza dal capoluogo fermano e dal MARE, in posizione tranquilla e panoramica, proponiamo in Vendita Casa singola su tre livelli con corte recintata di mq. 300.
L'abitazione presenta locali di ampia metratura, attualmente così distribuiti:
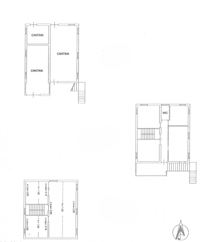
Piano Terra: rimessa multifunzionale + GARAGE
Piano Primo: ingresso, cucina abitabile, soggiorno, 2 camere matrimoniali ed ampio bagno
Piano Secondo: soffitta abitabile da personalizzare.
Possibilità di acquisto, con prezzo a parte, di utili accessori per le attività agricole (o per altri possibili impieghi).
Investimento interessante per gli amanti della natura o per chi necessita di ampi spazi "open air", in prossimità di tutti i servizi.
DA VISITARE!!

160 mq
4
1